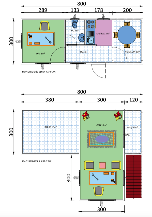
مكتب مبيعات نموذجي بمساحة 57 مترًا مربعًا من طابقين

  1. Home
  2. المنتج
  3. 154 متر مربع من المساكن الفولاذية المكونة من طابقين

مكتب مبيعات نموذجي بمساحة 57 مترًا مربعًا من طابقين

Contact

تواصلوا معنا

اتصلوا بنا لتصميم مساحتكم المعيشية

نحول أحلامك إلى واقع، ونبني مستقبلك بالحلول المسبقة الصنع